諮詢專線 449-9089 50445 (手機撥請加02)
推薦給你
預售
瀏覽數4,767

寬心[傑作NO.3]

  • 首購
  • 低總價
  • 低自備
  • 重劃區
  • 近公園
住宅取得報價

區域安南區

建案規劃透天別墅

地坪 住宅 24.48~39.1坪

建坪 住宅 50.46~79.76坪

建設公司 傑傑建設

接待中心 安南區慈興七街146號對面

諮詢專線 449-9089 50445 (手機撥請加02) / 累計9則通話

建案圖文
寬心[傑作NO.3] 台南買新屋 台南新建屋 台南新屋 台南購買預售屋
建案新訊
最新消息

寬心[傑作NO.3]傑傑建設最新安南區建案,建案規劃透天別墅,歡迎蒞臨鑑賞!

建案詳情
基本資料

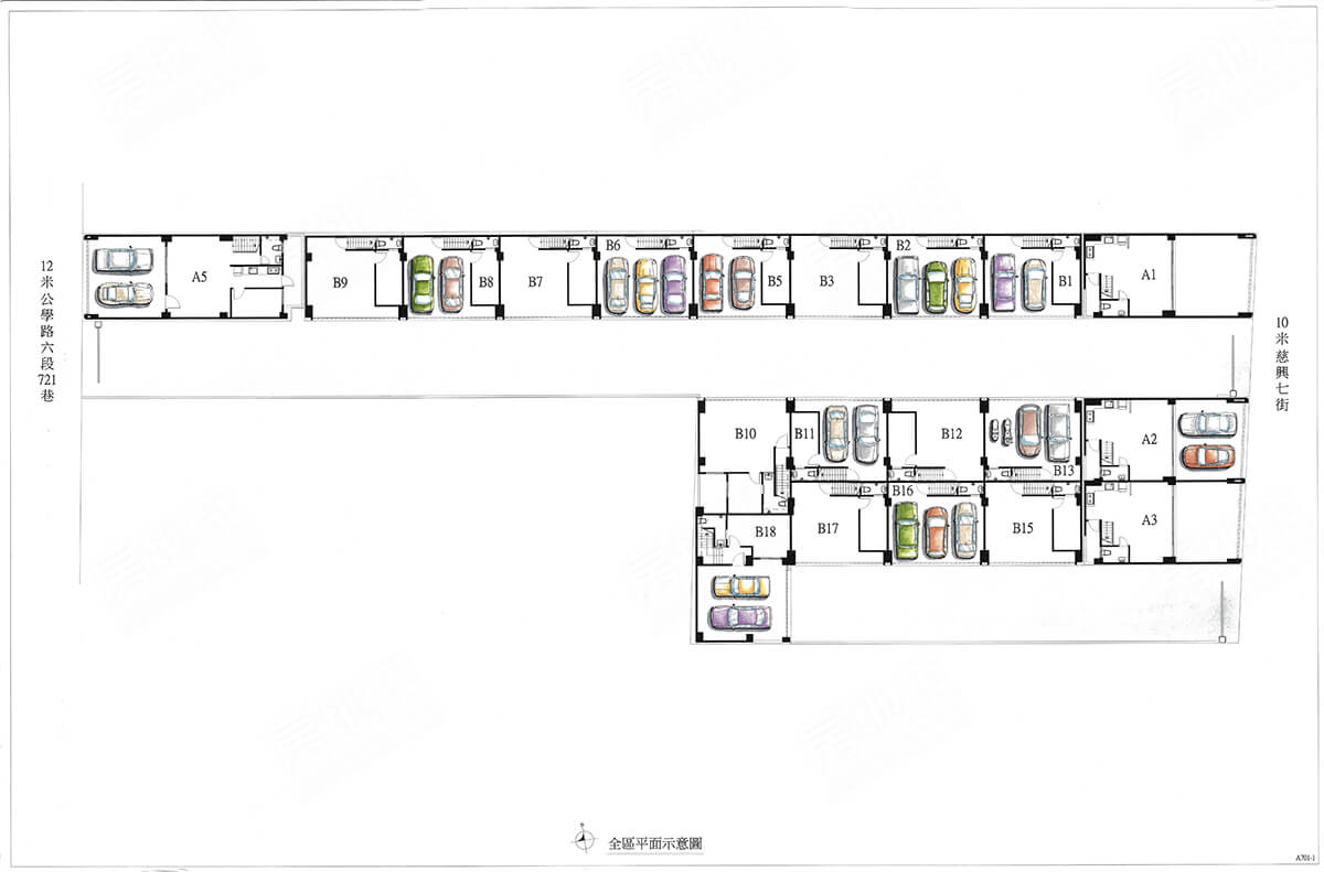
建案規劃透天別墅

房間規劃4~5房

地坪 住宅 24.48~39.1坪

建坪 住宅 50.46~79.76坪

面寬 住宅 6.35米~7.5米

總戶數 住宅 20戶

樓層規劃地上4層 

基地面積 約596坪

坐向座北朝南,座南朝北,座西朝東,座東朝西

基地位址 慈興七街與慈興十街口

特色描述

1. 全案建物面寛6.35~7.50公尺。
2.A區並排雙車庫、B區並排二至三車庫。
3.A區雙整層主臥。
4.TOTO衛浴。
5. 全棟櫻花廚具。
6. 史上最優、透天首選。
7. 全區透天住家規劃。
8. 全區四大房至五大房、四至五套衛浴。
9. 適合一般家庭、家庭代工及夜市從業人員居住。
10. 全區建案採光充足、耐震佳、好停車、寧靜及舒適。

周邊配套依基地位址周邊10公里範圍內
生活機能

學區/學校 學東國小、土城高中

超商/賣場 7-11、全家便利商店

熱門商圈 本淵寮商圈、土城商圈

醫療機構 安南醫院

政府機構 地政局、財政稅務局

區域精選
猜你喜歡

提醒您:本網站建案資訊開放委託刊登,我們將盡力查證相關資訊,但無法擔保皆正確無誤,所有資訊皆以傑傑建設及寬心[傑作NO.3]銷售現場之宣傳品為準。

推薦廠商
電話諮詢
服務時間10:00~19:00
客服